Price £300,000 - Sold STC


  • Complete onward chain
  • Two allocated parking spaces
  • Downstairs cloakroom
  • Separate reception rooms plus conservatory
  • Refitted bathroom and replacement double glazing!
  • Call now to view...

A modern three bedroom home boasting a refitted family bathroom, situated in a quiet cul-de-sac in the ever popular market town Winslow, within walking distance of schools, shops and parks. The home is ideal for a first time buyer or young family and features a downstairs cloakroom, separate reception rooms plus a conservatory! An early viewing is highly recommended to fully appreciate this home.

Further benefits include allocated parking for two cars and replacement double glazed windows!

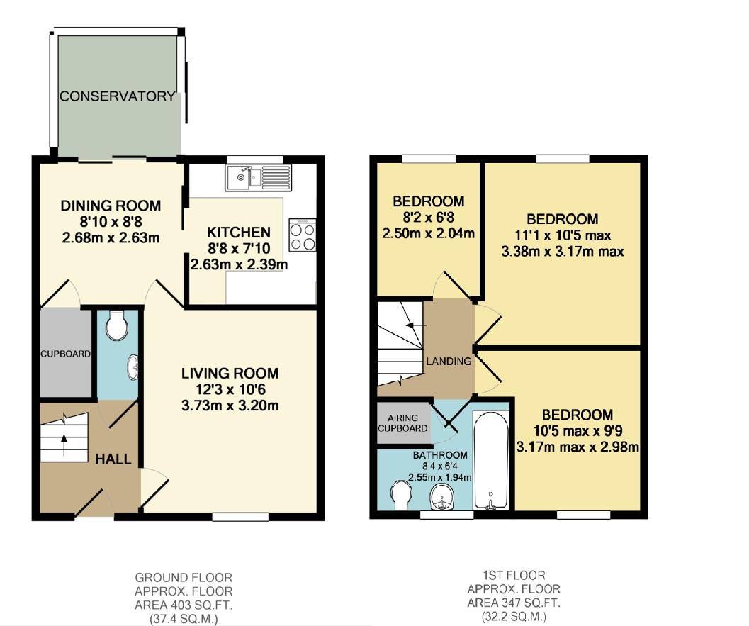
Accommodation:

Entrance hall: with stairs to the first floor and doors to the sitting room and cloakroom.

Cloakroom: fitted with a WC and hand basin.

Sitting room: a bright reception room with recently replaced carpet and double glazed window to the front aspect.

Dining room: a second reception room with a large built in storage cupboard and doors to the kitchen and conservatory.

Kitchen: fitted with a range of wall and floor mounted units with worktops above and a 1 1/2 bowl sink and drainer unit. There is a built in oven with gas hob and cooker hood above. Window overlooking the rear garden and spaces for a fridge/freezer, washing machine and slim line dishwasher.

Conservatory: a useful addition to the home with door leading out to the rear garden.

Landing: access to the loft and doors to the bathroom and all bedrooms.

Bedroom one: a spacious double bedroom with window to the rear aspect.

Bedroom two: a second bedroom with window to the front aspect.

Bedroom three: the third bedroom is a single room/nursery that would also be an ideal home office!

Bathroom: beautifully refitted with a modern suite comprising; WC, hand basin and bath with shower above. There is a heated chrome towel radiator, window to the rear, partly tiled walls and airing cupboard housing the combi boiler.

Parking: allocated parking for two cars.

Outside: a private garden enclosed by fencing with a gate leading to the parking area. The garden features a patio and is mostly laid to lawn.

General: Freehold, Buckinghamshire Council, council tax band: C, EPC: TBC



Notice
Please note we have not tested any apparatus, fixtures, fittings, or services. Interested parties must undertake their own investigation into the working order of these items. All measurements are approximate and photographs provided for guidance only.


/// trouble.quilting.resemble is the what3words address for the best entrance. what3words has given every 3 metre square in the world a unique combination of 3 random words.

Floor Plan
EER Chart

The Energy-Efficiency Rating is a measure of a home's overall efficiency. The higher the rating, the more energy-efficient the home is, and the lower the fuel bills are likely to be.

Utility Supply Type
Electric Mains Supply
Gas Mains Supply
Water Mains Supply
Sewerage Mains Supply
Broadband Unknown
Telephone Unknown

Other Items Description
Heating Gas Central Heating
Garden/Outside Space Yes
Parking Yes
Garage No

Broadband Coverage Highest Available Download Speed Highest Available Upload Speed
Standard 18 Mbps 1 Mbps
Superfast 80 Mbps 20 Mbps
Ultrafast 1000 Mbps 1000 Mbps

Mobile Coverage Indoor Voice Indoor Data Outdoor Voice Outdoor Data
EE Enhanced Enhanced Enhanced Enhanced
Three Enhanced Enhanced Enhanced Enhanced
O2 Enhanced Likely Enhanced Enhanced
Vodafone Likely Likely Enhanced Enhanced

Broadband and Mobile coverage information supplied by Ofcom.


marker icon